土地情報
土地 / 高崎市
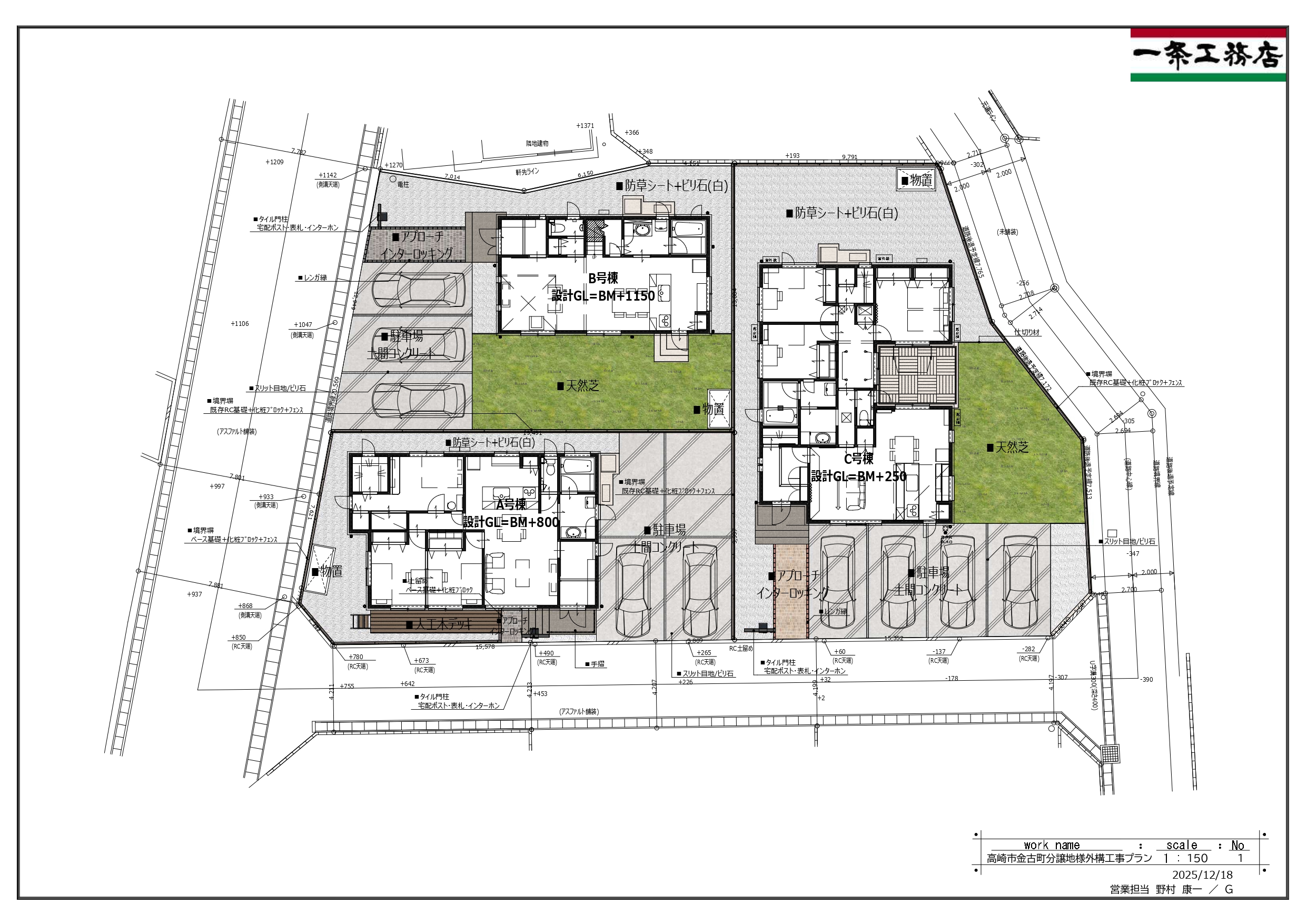
つなぐテラス金古
■売主物件・仲介手数料無し
■建築条件無し
■小学校まで徒歩3分!
区画
| 号地番号 | 販売価格 | 土地面積 | 備考 |
|---|---|---|---|
| No.1 | 960万円 | 205.04㎡(62.02坪) | |
| No.2 | 980万円 | 228.06㎡(68.99坪) | |
| No.3 | 1180万円 | 344.95㎡(104.35坪) |

アクセス・周辺環境
- 所在地
- 高崎市金古町1167-16他
- 交通
- JR上越線「群馬総社」駅まで4.4km
- 教育機関
- 群馬北保育園(約410m)
- 金古小学校(約350m)
- 群馬中央中学校(約650m)
- ショッピング
- アバンセ(約400m)
- イオンモール高崎(約2100m)
- セブンイレブン(約400m)
- ローソン(約1100m)
- マルエドラッグ(約630m)
- ディスカウントドラッグコスモス(約1000m)
- 病院
- 二之沢病院(約1900m)
- その他
- 郵便局(約1000m)
- 高崎信用金庫(約600m)
- 高崎市群馬支所(約1000m)
概要
- 総区画数
- 3
- 販売区画数・戸数
- 3
- 土地接道
- 西約7.2m公道(1・2号地)、南約4.5m公道(1・3号地)、東約2.5m公道(3号地)
- 地目
- 宅地
- 都市計画
- 区域内
- 用途地域
- 第一種中高層地域
- 物件種別
- 自社分譲
- 建築制限
- 建ぺい率50% 容積率100%
- 私道負担
- 無し
- 施設・設備
- 公営水道、浄化槽、プロパンガス、東京電力
- 敷地権利
- 所有権
- 取引形態
- 売主
- 学校区
- 金古小学校/群馬中央中学校
- 地勢
- 平坦地
- 特記事項
- 水道加入金88,000円要







